荷揚げ機 足場ウインチ
建設・土木・足場荷揚用高速ウインチ・仮設荷揚げ機 開発製造
ユニパー株式会社
  • ホーム
  • 製品一覧
  • 会社案内
  • ウインチ
  • 疾風ウインチ[UP788]
  • 法面・階段リフトオーダーレンタル
  • 法面リフト[UP106RN]
  • 階段リフト[UP106RK]
  • シルバーユニアーム[UP303]
  • 疾風ウインチSPページ
  • ユニパー製品情報
  • SNS・ブログ
  • 部品リスト
  • 動画チャンネル
  • サイトマップ
  • 資料請求
  • お問い合せ
  • 採用情報
  • 製品カタログ一覧
  • 製品サポート

疾風垂直リフト[UP636]

足場内部に垂直設置し最大46mまで荷揚げ可能な足場設置型荷揚げ機です。

 

レールは足場にクランプ付の金具で簡単に取付ができます。レールの長さは用途によって変更可能で最大46mの高さまで荷揚げができます。疾風ウインチを使用し操作は地上と上階の2ヶ所で無線操作可能で安全に効率よく作業ができます。

落下防止装置付台車を使用することにより、ワイヤーロープが切れた時に台車が落下するのを未然に防ぐことができます。

 

※UP788疾風ウインチ使用時、最大46m荷揚げ可能。

ダウンロード
UP636 疾風垂直リフトカタログ
UP636 カタログ.pdf
PDFファイル 832.1 KB
ダウンロード

UP636 疾風垂直リフト
UP636 疾風垂直リフト

■UP788 疾風ウインチ

最大巻揚げ荷重 130kg

巻揚速度 高速:35m/毎分

     低速:15m/毎分

操作スイッチ  無線リモコン(2個付)

ワイヤーロープ 5mm×100m巻

 

※オプション 

上限・下限停止リミットスイッチ

 

UP788ウインチ詳細


橋脚改修工事 高さ30m 足場内部で昇降 足場荷揚げ用リフト

台車はオーダーメイドで製作 落下防止装置付


橋脚改修工事 高さ30m 足場内部で昇降 足場荷揚げ用リフト

台車はオーダーメイドで製作 落下防止装置付

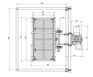
設置組立図

かご型台車 立体図

 

 

 

平面図

 


疾風垂直リフト 仕様

レール全長 48.9m ワイヤー100m巻 

部品名

仕様 数量 単位

UP788RC-100L 

疾風ウインチ

無線リモコン1個付

ワイヤー100m巻 1 台

無線リモコン

(送信機)

追加分

1

個

 特注かご台車

落下防止装置付

1

台
下部レール2.7m スタンドタイプ 1 本
中間レール3.3m   14 本
レール固定金具(L) クランプ付 30 個
上部滑車(帽子式)   1 個

オプション部品

リミットスイッチ

 

上限・下限の安全停止リミットスイッチ

 

リミットスイッチを追加する事で上限・下限の任意の高さで台車を安全に停止させる事ができます。

 

無線リモコンスイッチは上部、下部で2ヶ所で操作が可能です。

 

 

【動画で見る】足場設置型垂直リフト

足場内部で垂直に荷揚げ用のリフトとして設置

台車はオーダーメイドで落下防止装置付

 

 

ウインチ修理・メンテナンスはこちらから

 ホーム ウインチ 足場用ウインチ 瓦揚機 パネル荷揚機 ボード揚機 仮設リフト

  • 足場荷揚げ システム
  • 疾風垂直リフト[UP636]
  • 瓦・屋根材荷揚げ機
  • ボード揚げ機
  • 法面リフト[UP106RN]
  • 太陽光関係荷揚げ機
  • 小荷物用仮設リフト
  • ウインチ

法面・階段リフトレンタル

疾風ウインチ

スペシャルページ

高速ウインチ ブログ

階段でタイヤの荷揚げ 階段で安全にタイヤ運搬方法
>> 続きを読む

機種詳細

建設・足場荷揚げウインチ

疾風ウインチ UP788

疾風ウインチ UP787A

シルバーユニアーム UP303

疾風ウインチ

スペシャルページ

住宅用荷揚げ機

ソーラーリフト UP100N

パワーコメット UP103

スーパータワーR UP106R

武蔵 UP115

斜面・法面荷揚げ機

法面リフト UP106RN

階段リフト UP106RK

法面・階段リフトレンタル

垂直用荷揚げ機

スペースリフト UP620

スペースリフト2 UP624B

スペースリフト3 UP623A

疾風垂直リフト UP636

助っ人リフト UP639BS

電動ウインチ

ハイパワーZNウインチ UP711ZN-80L (特別仕様)

ハイパワーZNウインチ UP711ZN

ハイパワーZ法面ウインチ UP716ZRC

ハイパワーZウインチ UP711ZB

優ウインチ UP727

優ウインチ UP727-2

無線リモコンユニット UP700RC

アフターサービス

製品サポート・修理

ユニパー製品カタログ

製品カタログ一覧

動画チャンネル

▶YouTubeユニパーチャンネル

ブログ

ユニパーウインチ・荷揚げ機 ブログ

▶製品使用例・設置例紹介ブログ

レンタルのお問合せ

ユニパーはおもてなし規格認証 登録企業
ユニパーはおもてなし規格認証 登録企業

製品紹介スライド

全製品の紹介スライド

 

その他の ご案内

本サイトのご利用について

 

プライバシーポリシー

 

 

巻上げ機 安全講習

ウインチ・荷揚げ機のご使用で労働安全衛生法にて、動力により駆動される巻上げ機を用いる作業につく場合、特別教育を受講する必要があります。講習用テキスト「ウインチ運転者必携」安全衛生教育テキストと安全衛生教育手帳は建設業労働災害防止協会のサイトでご依頼下さい。

 

講習用テキスト ウインチ運転者必携

教育手帳 安全衛生教育手帳

>>English

プライバシーポリシー | サイトマップ
Copyright(C) 1985-2021, UNIPER Co.,Ltd. All Rights Reserved.
〒224-0042 神奈川県横浜市都筑区大熊町814
TEL 045-471-0015 FAX 045-471-0013
ログアウト | 編集
  • ホーム
  • 製品一覧
    • 足場荷揚げ システム
    • 疾風垂直リフト[UP636]
    • 瓦・屋根材荷揚げ機
    • ボード揚げ機
    • 法面リフト[UP106RN]
    • 太陽光関係荷揚げ機
    • 小荷物用仮設リフト
    • ウインチ
  • 会社案内
  • ウインチ
    • 足場荷揚げ ウインチ
    • 無線リモコンユニット[UP700RC]
  • 疾風ウインチ[UP788]
  • 法面・階段リフトオーダーレンタル
  • 法面リフト[UP106RN]
  • 階段リフト[UP106RK]
  • シルバーユニアーム[UP303]
  • 疾風ウインチSPページ
  • ユニパー製品情報
    • 荷揚げ機
    • 法面リフト 斜面荷揚げ
    • 階段リフト
  • SNS・ブログ
    • 会長のひとりごと
  • 部品リスト
    • 瓦揚げ機部品リスト
    • ボード揚げ機部品リスト
    • ウインチ部品リスト
  • 動画チャンネル
  • サイトマップ
    • 本サイトの ご利用に関して
    • プライバシーポリシー
    • トピックス
  • 資料請求
  • お問い合せ
  • 採用情報
  • 製品カタログ一覧
  • 製品サポート