建設・土木・足場荷揚用高速ウインチ・仮設荷揚げ機 開発製造
ユニパー株式会社
  • ホーム
  • 製品一覧
  • 会社案内
  • ウインチ
  • 足場荷揚げ システム
  • 疾風ウインチ[UP788]
  • 法面リフト[UP106RN]
  • 階段リフト [UP106RK]
  • シルバーユニアーム[UP303]
  • ユニパー製品情報
  • 疾風ウインチスペシャルページ
  • 疾風垂直リフト[UP636]
  • SNS・ブログ
  • 部品リスト
  • 動画チャンネル
  • サイトマップ
  • 資料請求
  • お問い合せ
  • 採用情報
  • 製品カタログ一覧
  • 製品サポート

垂直式仮設リフト

助っ人リフト [UP639BS] 

荷揚げ作業として店舗・工場・倉庫などの場所で簡易設置できる仮設リフト

 

店舗・工場・倉庫など あらゆる場所で仮設リフトとして稼働しています。

 

 

使用環境によりレールの長さ、台車の大きさを変更でき、上段・下段の安全停止リミットスイッチも設置でき安全な作業ができます。

ダウンロード
UP639BS カタログ
UP639BS 助っ人リフト
UP639BS カタログ.pdf
PDFファイル 193.2 KB
ダウンロード

建築現場でボード・フロアの荷揚げ機としても使用できます。

 

特注で台車を変更することで、倉庫などで省スペースの小荷物の荷揚げ等にご使用いただけます。

 

※オプション  落下防止装置(受注生産)

ワイヤーロープ切断時に対応する落下防止装置

 

 

■UP727 優(すぐる)ウインチ

最大積載量 130kg

巻揚速度 22m/毎分

操作スイッチ 5m・15mコード付

 

※オプション 

上限・下限停止リミットスイッチ

 

UP727ウインチ詳細


石膏ボード荷揚げ

荷揚げ機 ボード荷揚げ
荷揚げ機 ボード荷揚げ
荷揚げ機 ボード荷揚げ
荷揚げ機 ボード荷揚げ
荷揚げ機 ボード荷揚げ
荷揚げ機 ボード荷揚げ

【動画で見る】石膏ボード荷揚げ現場

【動画で見る】小荷物用昇降機 仮設リフト垂直設置

現場での資材荷揚げリフト 吹抜け部分へ設置 電源100V

小荷物用昇降機として倉庫、店舗等に仮設で簡易に設置ができる昇降機

※台車(カゴ)は、オーダーメイドで製作  積載荷重 80㎏~130㎏

 

       

     

 

     

   

 

 

 

小荷物用昇降機として仮設設置で荷物の荷揚げ、荷降ろしに使用できます。

台車(カゴ)は、現場に合わせてオーダーメイドで製作できます。

 

 

荷揚げ用 台車

UP639BS 標準台車

標準台車

高さ1200×横幅650×奥行300

*台車のアオリ部分は折りたたみ可能。

UP639BS 台車アオリ(補強付) L500

台車のアオリ(荷受け部分)をL500(補強付)に変更可能

高さ1055×横幅650×奥行500

*台車の有効高さは1050㎜になります。

*台車のアオリ部分は折りたたみ可能。

UP624A ボード上げ機 台車アオリ(補強付) L500

台車アオリL500(補強付)


※ 台車はお客様のニーズに合わせて1台より製作致します。

台車特注仕様

特注仕様で台車(荷台)をかご型に変更して、小荷物の荷揚げにもご使用いただけます。

※ オプションでワイヤーロープ切断時の落下防止装置も装備できます。

オプション部品

手動運転リミットスイッチ

 上限・下限の安全停止リミットスイッチ

 

リミットスイッチを追加する事で上限・下限の任意の高さで台車を安全に停止させる事ができます。

 

操作スイッチは1階、2階の2ヶ所へ設置でき2ヶ所の操作が可能です。

 

※ 台車裏側にリミットスイッチ当て板が必要になります。

 

 

    無線リモコンユニット

 

無線リモコンユニットを追加する事で無線操作ができます。

 

無線リモコンユニットの受信機をウインチ本体と接続します。

ウインチ本体の操作スイッチ接続レセプタクル部分(操作スイッチ15mを接続部分)に無線リモコンユニット受信機を接続し使用します。有線側の操作スイッチ5mと併用して2ヶ所での操作可能です。

追加で無線リモコンスイッチを1個追加する事もできます。

詳細はUP700RCを参照

 

UP639BS 助っ人リフト 構成表

UP639BS 助っ人リフト 構成表
UP639BS 助っ人リフト 構成表
ダウンロード
UP639BS 助っ人リフト 構成表
UP639BS.pdf
PDFファイル 66.1 KB
ダウンロード

UP639BS 助っ人リフト 組立図

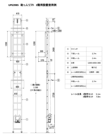
UP639BS 助っ人リフト 2階用設置使用例
UP639BS 助っ人リフト 2階用設置使用例
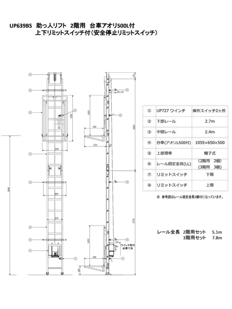
UP639BS 助っ人リフト 2階用 台車アオリL500付 上下リミットスイッチ付
UP639BS 助っ人リフト 2階用 台車アオリL500付 上下リミットスイッチ付

 

各機種の組立図は下記からダウンロードしてください。

 
ダウンロード
UP639BS 助っ人リフト 組立図
UP639BS 助っ人リフト 2階用設置使用例.pdf
PDFファイル 602.6 KB
ダウンロード
ダウンロード
UP639BS 組立図 (台車アオリ500L補強付 上下リミットスイッチ付)
UP639BS 助っ人リフト 2階用 台車アオリ500L付 上下リミットスイッチ
PDFファイル 617.5 KB
ダウンロード
ウインチ修理・メンテナンスはこちらから

 ホーム ウインチ 足場用ウインチ 瓦揚機 パネル荷揚機 ボード揚機 仮設リフト

疾風ウインチ

スペシャルページ

高速ウインチ ブログ

工場、大型倉庫の屋根へ太陽光パネルの荷揚げに「スペースリフト3」
>> 続きを読む

機種詳細

建設・足場荷揚げウインチ

疾風ウインチ UP788

疾風ウインチ UP787A

シルバーユニアーム UP303

疾風ウインチ

スペシャルページ

住宅用荷揚げ機

ソーラーリフト UP100N

パワーコメット UP103

スーパータワーR UP106R

武蔵 UP115

斜面・法面荷揚げ機

法面リフト UP106RN

階段リフト UP106RK

垂直用荷揚げ機

スペースリフト UP620

スペースリフト2 UP624B

スペースリフト3 UP623A

疾風垂直リフト UP636

助っ人リフト UP639BS

電動ウインチ

ハイパワーZNウインチ UP711ZN-80L (特別仕様)

ハイパワーZNウインチ UP711ZN

ハイパワーZ法面ウインチ UP716ZRC

ハイパワーZウインチ UP711ZB

優ウインチ UP727

優ウインチ UP727-2

無線リモコンユニット UP700RC

アフターサービス

製品サポート・修理

ユニパー製品カタログ

製品カタログ一覧

動画チャンネル

▶YouTubeユニパーチャンネル

ブログ

ユニパーウインチ・荷揚げ機 ブログ

▶製品使用例・設置例紹介ブログ

レンタルのお問合せ

足場ウインチ・無線高速ウインチ・荷揚機・瓦揚機・ボード揚げ機・簡易リフト小荷物用昇降機 ブログ

足場業界 マッチングアプリ アシバッチ
>> 続きを読む

東京都 太陽光パネル設置が義務化へ
>> 続きを読む

石膏ボード荷揚げ 現場設置例 UP639BS 助っ人リフト
>> 続きを読む

新築マンション エレベーター昇降路内 垂直リフト設置 スペースリフト3 UP623A
>> 続きを読む

足場ウインチ UP788 新型疾風ウインチの特徴
>> 続きを読む

UP700RC 無線リモコンユニット 

階段リフト見積依頼書

  コードレスで無線操作

 

お持ちのウインチが無線操作に変身します。

 

ワイヤレス操作ができる無線リモコンユニットが人気です。

 

 

ユニパーはおもてなし規格認証 登録企業
ユニパーはおもてなし規格認証 登録企業

製品紹介スライド

全製品の紹介スライド

 

その他の ご案内

本サイトのご利用について

 

プライバシーポリシー

 

 

巻上げ機 安全講習

ウインチ・荷揚げ機のご使用で労働安全衛生法にて、動力により駆動される巻上げ機を用いる作業につく場合、特別教育を受講する必要があります。講習用テキスト「ウインチ運転者必携」安全衛生教育テキストと安全衛生教育手帳は建設業労働災害防止協会のサイトでご依頼下さい。

 

講習用テキスト ウインチ運転者必携

教育手帳 安全衛生教育手帳

>>English

プライバシーポリシー | サイトマップ
Copyright(C) 1985-2021, UNIPER Co.,Ltd. All Rights Reserved.
〒224-0042 神奈川県横浜市都筑区大熊町814
TEL 045-471-0015 FAX 045-471-0013
ログアウト | 編集
  • ホーム
  • 製品一覧
    • 瓦・屋根材荷揚げ機
    • ボード揚げ機
    • 法面リフト[UP106RN]
    • 太陽光関係荷揚げ機
    • 小荷物用仮設リフト
    • ウインチ
  • 会社案内
  • ウインチ
    • 無線リモコンユニット[UP700RC]
  • 足場荷揚げ システム
    • 足場荷揚げ ウインチ
  • 疾風ウインチ[UP788]
  • 法面リフト[UP106RN]
  • 階段リフト [UP106RK]
  • シルバーユニアーム[UP303]
  • ユニパー製品情報
    • 荷揚げ機
    • 法面リフト 斜面荷揚げ
    • 階段リフト
  • 疾風ウインチスペシャルページ
  • 疾風垂直リフト[UP636]
  • SNS・ブログ
    • 会長のひとりごと
  • 部品リスト
    • 瓦揚げ機部品リスト
    • ボード揚げ機部品リスト
    • ウインチ部品リスト
  • 動画チャンネル
  • サイトマップ
    • 本サイトの ご利用に関して
    • プライバシーポリシー
    • トピックス
  • 資料請求
  • お問い合せ
  • 採用情報
  • 製品カタログ一覧
  • 製品サポート