お問合せ TEL 045-471-0015
ブラケットアームの概念を変えた足場専用ブラケットアーム登場!
ブラケットアームの旋回が軽く、介錯ロープをガイド代わりにして足場の荷揚げができる足場部材の荷揚げ革命!新たな荷揚げシステムが誕生しました。
高速ウインチ「疾風」と「シルバーユニアーム」を組み合わせることで安全に効率の良い荷揚げ作業ができます。
介錯ロープをガイド代わりにし、安全で効率の良い足場荷揚げ作業ができます。
下置きウインチ専用のブラケットアーム『シルバーユニアーム』を使用する事で安全で効率の良い足場部材荷揚げ作業ができます。
・ウインチの真上にシルバーユニアームを設置する事でアーム下部に補助滑車に変わる滑
車が付いており、そこからワイヤーロープを通し使用します。アームの回転軸の真下か
らワイヤーロープを進入させる事でアームの旋回が軽く、アーム間近での吊荷の荷取り
も安全にできます。旋回軸には特殊ベアリングを組み込まれております。
・合わせて介錯ロープをアーム先端に設置しガイド代わりに使用する事ができます。
UP788疾風ウインチとUP303シルバーユニアームを組み合わせて使用する事で安全で効率の良い荷揚げ作業ができます。
通常ウインチでの荷揚げ作業では、吊下げウインチ(ホイスト)の真下から吊荷を荷揚げしなければなりませんでした。シルバーユニアームの特長である介錯ロープをガイド代わり使用する事で離れた場所から吊荷を揚げ、荷揚げしながら横移動ができたり、障害物をかわして安全に荷揚げができるシステムです。
UP788疾風ウインチとUP303シルバーユニアームがレンタル仕様に採用されました。
操作性・安全性を追求した荷揚げシステム
据え置きウインチ専用ブラケットアーム
シルバーユニアームの特長
・旋回軸に特殊ベアリングを内蔵しておりアームが軽く振れ、アーム間近でも安全に荷取りができます。
・介錯ロープをガイド代わりにし、吊荷を揚げる事ができます。
介錯ロープ、補助ロープを使用するメリット
・介錯ロープに沿って吊荷が上がるので、吊荷の回転を防ぎます。
・介錯ロープを介錯アームの先端に固定する事で、ロープの上下運動がなくなりロープが足元に散らからず安全です。
・介錯ロープをテコの原理を応用し軽く引くことで植木・下屋根・アサガオ等の障害物をかわすことが可能です。
・荷揚げ場所は、ブラケットアームの真下以外に離れた場所から荷揚げしながら移動ができます。
・巻下げの場合、空荷状態であれば介錯ロープの下部分を作業場所に介錯ロープをゆるまないよう固定しておけば、ラッチロックフックだけ下へ移動ができます。作業員が他の作業をしながら操作ができるので効率が上がります。
取付
・一側足場、次世代足場のポケットもかわして設置できます。
・クランプ適合パイプ Φ42.7 Φ48.6
・本体2分割で設置もラクラクです。
・介錯ロープを固定する介錯アームの取付け、取外しもロックピンのみでワンタッチに安全にできます。
・ワイヤーロープの取付も下部滑車部分にワイヤーロープの外れ止め機構が付いていますのでヒューマンエラーでワイヤーロープを取付け、取外しの際に落下させる心配がありません。

次世代足場にシルバーユニアーム設置画像 支柱ポケットをかわして設置可能
ホイスト用ブラケットアームを使用した場合
・ウインチから金車へ回したワイヤーロープが絡まって
しまいます。
補助滑車を取付使用
・ワイヤーロープの絡みは回避できますが、アームの旋回
が重く左右どちらかに寄ってしまいます。
介錯ロープを吊りフックに付けて荷揚げした場合
・吊荷の制御が吊荷が高くなるほど難しくなります。
・介錯ロープが吊りフックと一緒に上下します。荷揚げ時にロープを持つ手が摩擦で熱く
なり、荷下げ時は介錯ロープをたぐり降ろさなければならなく、足元にロープがたまり
足に絡み危険です。

・ウインチの真上にシルバーユニアームを設置する事でアーム下部に補助滑車に変わる滑
車が付いており、そこからワイヤーロープを通し使用します。アームの回転軸の真下か
らワイヤーロープを進入させる事でアームの旋回が軽く、アーム間近での吊荷の荷取り
も安全にできます。旋回軸には特殊ベアリングを組み込まれております。
・合わせて介錯ロープをアーム先端に設置しガイド代わりに使用する事ができます。
⑩シャックルRS-2、⑪ラッチロックフック(大)はUP788疾風ウインチのラッチロックフック付のタイプに付属しています。
お持ちのウインチを使用する場合、⑩、⑪を別途準備が必要です。
従来のブラケットアームとシルバーユニアームとの比較

ホイスト用ブラケットアームを使用した場合、ホイストを取付けた真下から荷揚げしていました。シルバーユニアームの介錯ロープガイドシステムを使用する事で大幅に吊り範囲を広く使用できます。
介錯ロープガイドシステムを効率良く使い、シルバーユニアームの真下(吊元)から離れた場所で足場部材を吊り上げ、荷揚げしながら横移動をしている様子です。
介錯ロープガイドシステムを効率良く使い、障害物を回避している様子です。
介錯ロープガイドシステムで吊荷が介錯ロープをガイドに荷降ろしができます。吊荷の回転も無く、介錯ロープに沿って荷降ろしができます。
① シルバーユニアーム旋回軸
旋回軸に特殊ベアリングを内蔵、アームの旋回が軽く振れ、アーム間近での荷取りも
安全にできます。
② 下部滑車装備
回転軸の真下からワイヤーロープを侵入させる事でアームの振れがかたよらない構造になっています。ウインチをアームの真下に設置した場合は、補助滑車は不要です。
ワイヤーロープの取付けも下部滑車部分にワイヤーロープの外れ止め機構が付いているのでヒューマンエラーでワイヤーロープを取付け、取外しの際に落下させる心配がありません。
③ 介錯アーム
アーム本体に簡単取付、取外しは安全のためロックピン解除をして取外し、細かいボル
トナットを使用していませんので取付、取外しに部品を落下させない安全設計。アーム
先端に介錯ロープを取付て使用します。
④ 介錯ロープ
介錯アームに取付け介錯ロープをガイド代わりにし、吊荷を揚げる事ができます。
⑤ 補助ロープ
吊りフックと介錯ロープを補助ロープで繋ぐ事で、フックが介錯ロープに沿って上下し
ます。
⑥ 固定クランプ
一側足場、次世代足場のポケットをかわして設置できます。クランプの交換も簡単にで
きます。
⑦ ラッチロックフック(大)
介錯ロープをガイド代わりする場合、フックと介錯ロープを繋ぐ⑤補助ロープの外れ防 止のためにラッチロックフックを使用します。吊荷は直接このラッチロックフックには 吊りません。
⑧ ラッチロックフック(小)
⑦ラッチロックフック(大)の下にラッチロックフック(小)をリング等を用いて入
れ、それに吊荷を吊ります。
⑨ シャックル式の滑車(金車)
吊荷を巻揚げ過ぎた際の安全の為、シャックルのシーブ径100mm以上の滑車を推奨し
ます。
※フック式の滑車は巻揚げ過ぎた際に外れる可能性があるのでお勧めできません。
・介錯ロープに沿って荷揚げが可能
・アサガオ、塀等の障害物をかわして荷揚げが可能
2025年10月8日より ラッチロックフック各種と専用シャックルRS-2tの色の変更を行いました。色以外の機能・サイズ変更はありません。
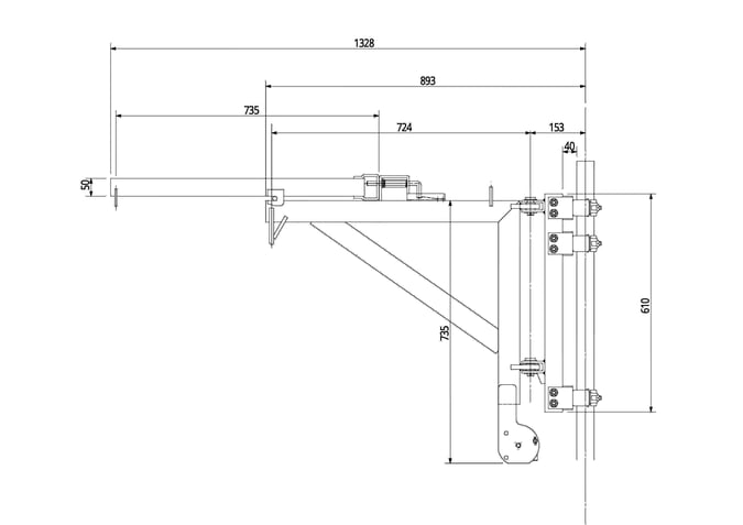
寸法図 (単位 ㎜)
旋回角度 (単位 ㎜)
構成規格
| 旋回半径 | 724mm |
| 旋回角度 | 226度 |
| アーム本体重量 | 14.0㎏ |
| 介錯アーム重量 | 1.8㎏ |
UP303シルバーユニアームは、次世代足場にも設置可能です。
各足場メーカーの次世代足場の支柱ポケットを回避して設置できます。
荷揚げに最適な各種吊りバックとウインチの性能をフルに発揮できる電工ドラム
疾風ウインチを安全に、また快適にご使用いただくために推奨電工ドラムをお勧めしています。

2017年7月19日~21日に東京ビックサイトで開催された「建設資材展」での実演展示の様子